高山市・飛騨市・下呂市・白川村の不動産情報|

WEB 81店頭 1451

10/29新規 戸建 高山市清見町三日町 1980万

1,980万円

岐阜県高山市清見町三日町1461-1

高山本線「高山」駅徒歩81分

価格
1,980万円
間取り/建物面積
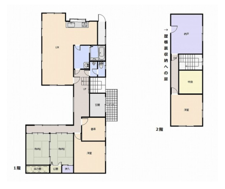
6LDK/138.76㎡
所在地
岐阜県高山市清見町三日町1461-1
築年
1981年6月(築44年)
駐車
交通

高山本線高山」駅 徒歩81分

10/29新規 戸建 高山市清見町三日町 1980万の基本情報

物件名
10/29新規 戸建 高山市清見町三日町 1980万
価格
1,980万円
建物面積
138.76㎡
土地面積
337.28坪(1114.98㎡)
築年月
1981年6月(築44年)
総戸数
-
所在地
岐阜県高山市清見町三日町1461-1
交通

高山本線高山」駅 徒歩81分

10/29新規 戸建 高山市清見町三日町 1980万の詳細情報

設備条件
設備(その他)
    -
駐車場/月額
有/-
土地権利
所有権
国土法届出
不要
用途地域
無指定
取引態様
仲介
引渡し
相談

10/29新規 戸建 高山市清見町三日町 1980万で募集中の物件

  1. 41.97坪 (138.76㎡)

    1,980万円(47.18万円/坪)

周辺施設

  • きよみストアの画像

    スーパー

    きよみストア

    434m(6分)

  • 清見中学校の画像

    中学校

    清見中学校

    846m(11分)

  • Room335の画像

    喫茶店・カフェ

    Room335

    1267m(16分)

  • 清見小学校の画像

    小学校

    清見小学校

    1551m(20分)

  • 清見保育園の画像

    保育園

    清見保育園

    1664m(21分)

  • ファミリーマート高山しんぐう店の画像

    コンビニエンスストア

    ファミリーマート高山しんぐう店

    2750m(35分)

近隣の物件

  1. 高山市国府町広瀬町

    3LDK (177.20㎡)

    3,480万円

  2. 高山市大新町3丁目

    6K (179.64㎡)

    2,200万円

  3. 高山市八軒町2丁目

    1LDK (38.34㎡)

    2,800万円

  4. 高山市西之一色町1丁目

    6K (68.63㎡)

    500万円

よく見られている物件

  1. 高山市西之一色町1丁目

    6K (68.63㎡)

    500万円

  2. 高山市江名子町

    3LDK (104.10㎡)

    2,650万円

  3. 高山市左京町

    4K (126.16㎡)

    1,300万円

  4. 高山市新宮町

    3K (92.47㎡)

    580万円

10/29新規 戸建 高山市清見町三日町 1980万

お気軽にお問い合わせください

無料お問い合わせ

株式会社ひなた不動産

0577-32-6811

9:00~18:00

(休:火・水)

TOP